- 地址:
- 河北省泊头市富镇开发区
- 传真:
- 0317-8041117
- Q Q:
- 28505225
搅拌站主机仓顶除尘器

一、概述
主机式仓顶除尘器为我公司引进国外先进技术,结合国内粉尘回收的使用特点,设计生产出的新一代环保型节能产品。主机除尘器主要用在对商砼站生产、运输、储存过程中产生的各种粉尘进行完全回收、再利用。即可切实有效的解决了对周围环境的污染问题,又能经济合理地节约了宝贵的资源。
二、清灰原理
本公司搅拌站地面除尘器是采用气动脉冲原理,即主机除尘器工作时,通过电脑板控制,对主机除尘器内每个布袋滤芯逐个清灰,即每个布袋里面瞬间充满气体,布袋瞬间膨胀,把附着在除尘布袋表面的灰尘瞬间抖落,达到清灰的目的。此外,滤袋入口处设计增压文氏管,这样可以二次增压,使脉冲清灰更彻底。一次清灰率高达99.9%,一般传统除尘器靠0.5千瓦左右的振动电机震动达到清灰目的,但清灰不彻底,浪费电,易坏,某种程度纯属摆设。主机除尘器带有观察门,方便检查布袋使用情况。
三、工作原理:
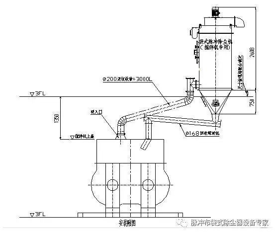
搅拌机在生产过程中,向搅拌机内投料(粉状物),由于惯性这些粉状物会形成粉尘,造成环境污染。布袋脉冲式除尘器可以在投料的开始(配备风机2.2KW~5.5KW,根据搅拌主机容量大小选配),吸收粉尘(3m³搅拌机一般会产生2~3kg/罐),经过布袋过滤把粉尘集中在布袋脉冲式除尘器的下部漏斗,振动电机振动后,经过回收螺旋输送机把粉尘送入搅拌机内或人工收集,不会造成二次污染。
四、设备自身优点:
① 有利于保护环境;
② 有利于回收粉尘(节约成本);
③ 有利于观察搅拌主机内的搅拌情况(在搅拌主机上盖处可以安装摄像头);
④ 有利于搅拌机内空气对流;
⑤ 在接入砼站气泵气体的入口处装有油水过滤器,能使反吹清灰的高压气体进一步将油份水份净化分离;
⑥ 整个主机除尘器的反吹清灰是由电脑板控制气动脉冲阀,对滤芯逐一清理,好限度延长滤芯寿命。现场只需接入一个380V的电源线和0.5~0.7Mpa的气源即可,省电节约能源;
⑦ 嵌入式弹性袋口,密封性好,能一次性处理高达1000g/m2浓度的烟尘,排放小于50g/m3,符合国家排放标准;
⑧ 脉冲阀数量少,清灰强度大,动作迅速;
⑨ 整机采用微机自动控制,各参数易于调节,可实现无岗位工操作;
⑩ 滤袋使用寿命二年以上;
⑪ 易实现隔离检修,除尘机相对主机运转率100%。
五、参数规格
型号 | MC15034 | 过滤面积 | 22㎡ |
除尘通道数量 | 1~2 | 供电电压 | 380V |
风机功率 | 2.2~5.5KW | 供气气压 | 0.5~0.7Mpa |
完成时间 | 10s(3m³) | 吸入风量 | 50m³/min |
工作温度 | -10℃~40℃ | 外形尺寸 | 1400×1120×3500 |
由于产品不断改进,公司保留不事先通知变更产品规格或装备的权利
六、经济效益分析
1、按单站年产量为30万方混凝土计算,传统除尘器正常使用要更换滤芯4次,即三个月要更换一次。主机除尘器大概要16-20个滤芯,每年合计要更换100个左右的滤芯,滤芯市场采购价在80-100元/个,即单套站每年需要更换滤芯的费用在1万左右,两年大概要2万左右的费用。搅拌站主机除尘器一次性投入,滤芯两年免更换维护,使用成本两年节约2万元左右。
2、随着国家对城市大气环境要求越来越高,各地都出台的相关针对商混站粉尘污染的惩罚规定,对各地的商混站要求必须进行厂房式封装,所以商混站从自身长期稳定经营角度讲,主机除尘器除尘效果必须稳定,如果不稳定,主机楼内会造成严重污染和对资源的浪费。所以对于商混站主机除尘器改造和更新是大势所趋,也是生产经营的长期大计。


上一篇:仓顶除尘器的应用及使用说明
下一篇:简单为您介绍下仓顶除尘器

